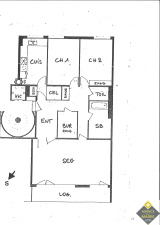
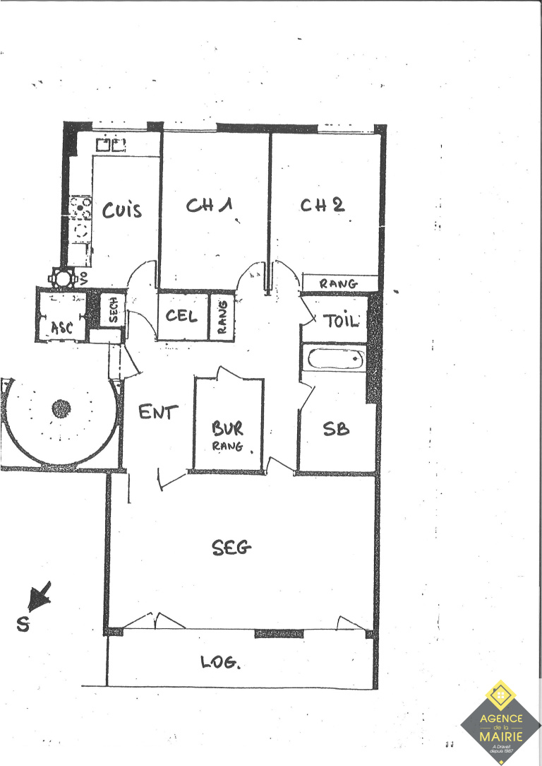
F3 de 86.39 m², lumineux, fonctionnel et traversant. Il est situé dans une résidence calme et sécurisée, à 10 min à pied du centre ville et des commerces.
Au 1er étage étage avec ascenseur, il est composé d'une entrée, un séjour de 27m² donnant sur une grande loggia plein sud, une cuisine aménagée, 2 chambres, un dressing, une salle de bains, un WC avec fenêtre.
Il dispose d'une cave et d'une place de parking privé.
Il y a des travaux de rénovation à faire, mais il y a un très beau potentiel. Avis aux bricoleurs
